Menu

Téléphone

04 73 31 14 15

Adresse

1 allée Alan Turing,
63170 Aubière

Horaires

Lundi -Vendredi
08:30-17h30
Mercredi
08:30-12h00

  • Maison/villa
  • Vente

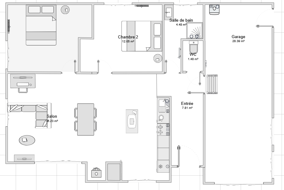
Maison 4 pièces 74m2

Lussat
221 300€

Description

Sur la commune de Lussat, à 5km de pont du chateau. Maison de 74m2 habitable sur 460m2 de terrain. Au RDC, vous trouverez une pièce de vie de 36 m2 avec cuisine ouverte, 2 belles chambres de plus de 12m2, vaste entrée et salle d’eau et wc séparé. A l’étage: deux grandes pièces à aménager entièrement suivant vos envies pour une surface total de 30 m2. Un grand garage de 30 m2 avec une partie grenier au dessus complète ce bien. Prix AVEC travaux de rénovation complet du RDC, cuisine neuve inclus: 221 300 EUR (hors papier pient et peinture des murs) Eligible PTZ ancien Prix de la maison Hors travaux: 165 000 EUR

Résumé

  • Type Maison/villa
  • Chambres 2
  • Salle de bains 1
  • Surface 75 m²
  • Terrain 460 m²
  • Prix 221,300€

Localisation

Détails

  • Référence 4944
  • Prix 221 300€
  • Pourcentage honoraires 0.00%
  • Nombre d'étages 1

Diagnostic énergétique du bien

DPE vierge Consommations non exploitables
* Dont émissions de gaz à effet de serre
GES vierge Consommations non exploitables

Logement à consommation énergétique excessive : classe F

Géorisques

Les informations sur les risques auxquels ce bien est exposé sont disponibles sur le site Géorisques https://www.georisques.gouv.fr